Ecole primaire à Malley

Concours pour une école primaire sur le site du gazomètre

Lieu

Malley

Procédure

Concours – participation

Réalisation

2025

Equipe

Antonio Garifo, Léa Piard, Daniel Gomez, Fabrizio Giacometti

Concept

Le futur quartier de Malley Centre va initier sa mue par l’arrivée d’une école primaire et d’un complexe sportif. Afin de dynamiser ce nouveau souffle, la proposition Phare Ouest s’appuie sur les éléments forts du site, la forêt existante, le Parc à venir et la Balade fleurie. La nouvelle école très compacte vient se poser dans un parc volontairement agrandi par rapport au PA et crée un dialogue avec les bâtiments existants et particulièrement avec le gazomètre, mémoire du lieu, et la paroisse rénovée. Le rez-de-chaussée et les espaces de préaux, de vélos, de piste de course et d’aire gazonnée reprennent l’idée de « coulisses » pour faire un clin d’œil au projet urbain lauréat du même nom.

Le projet

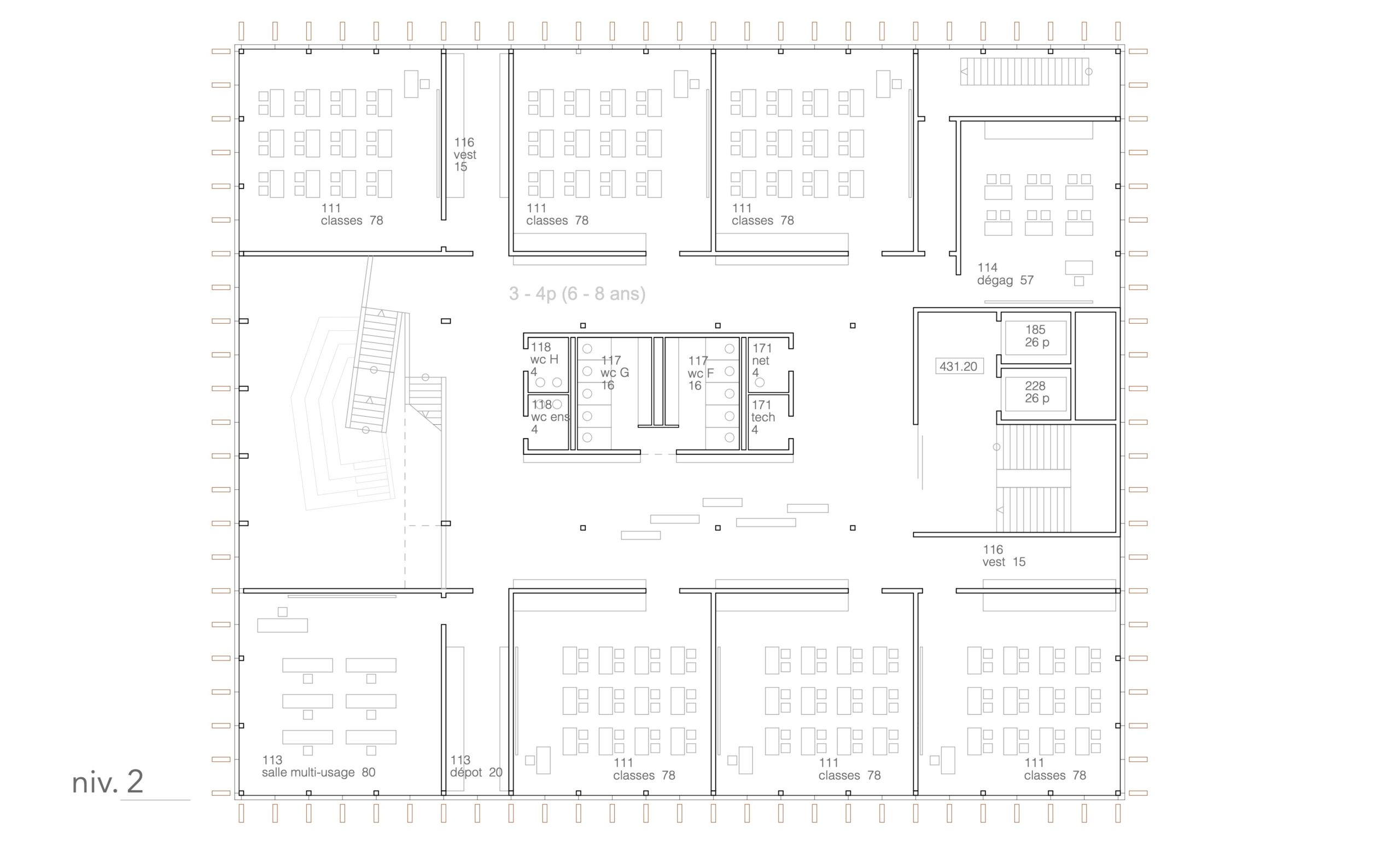
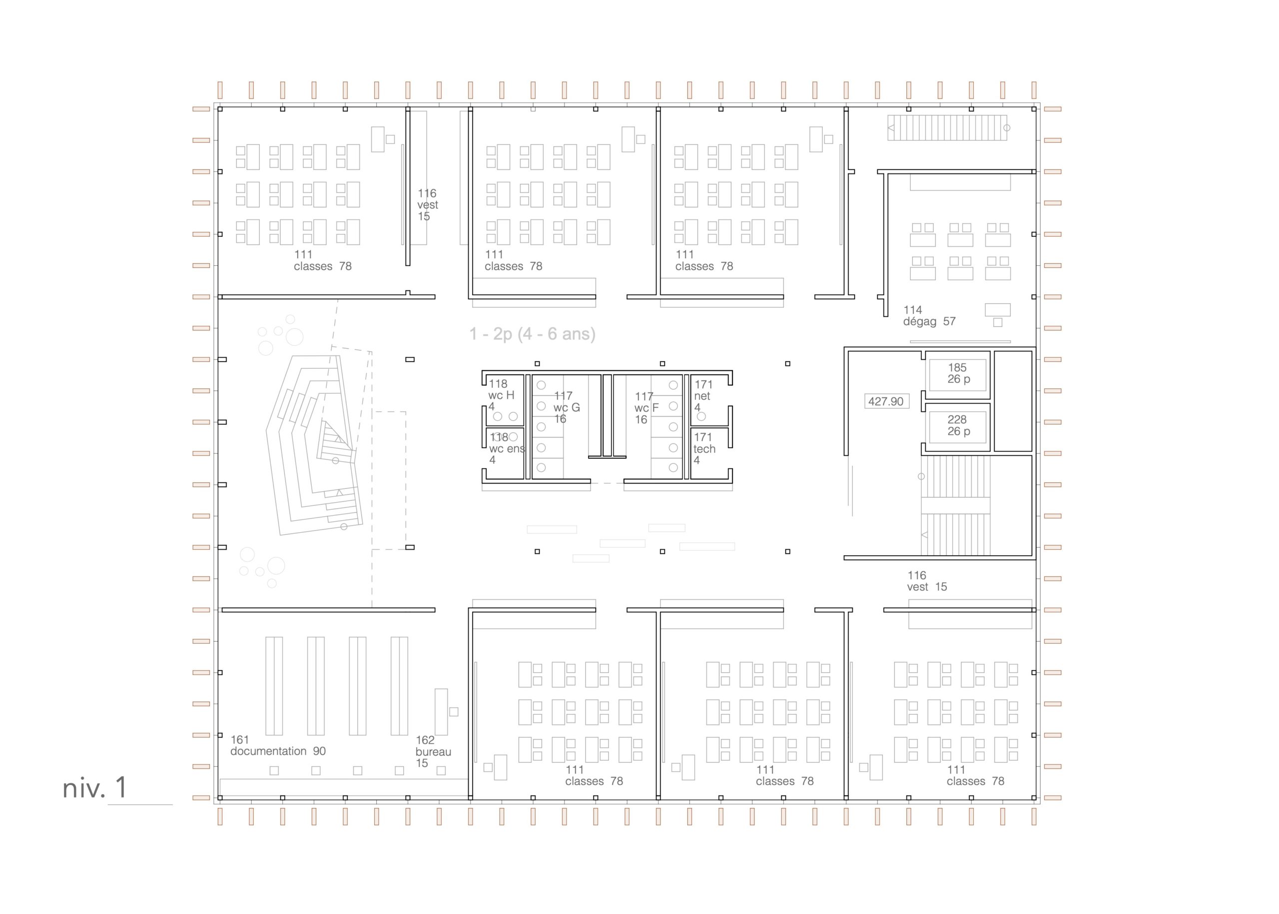
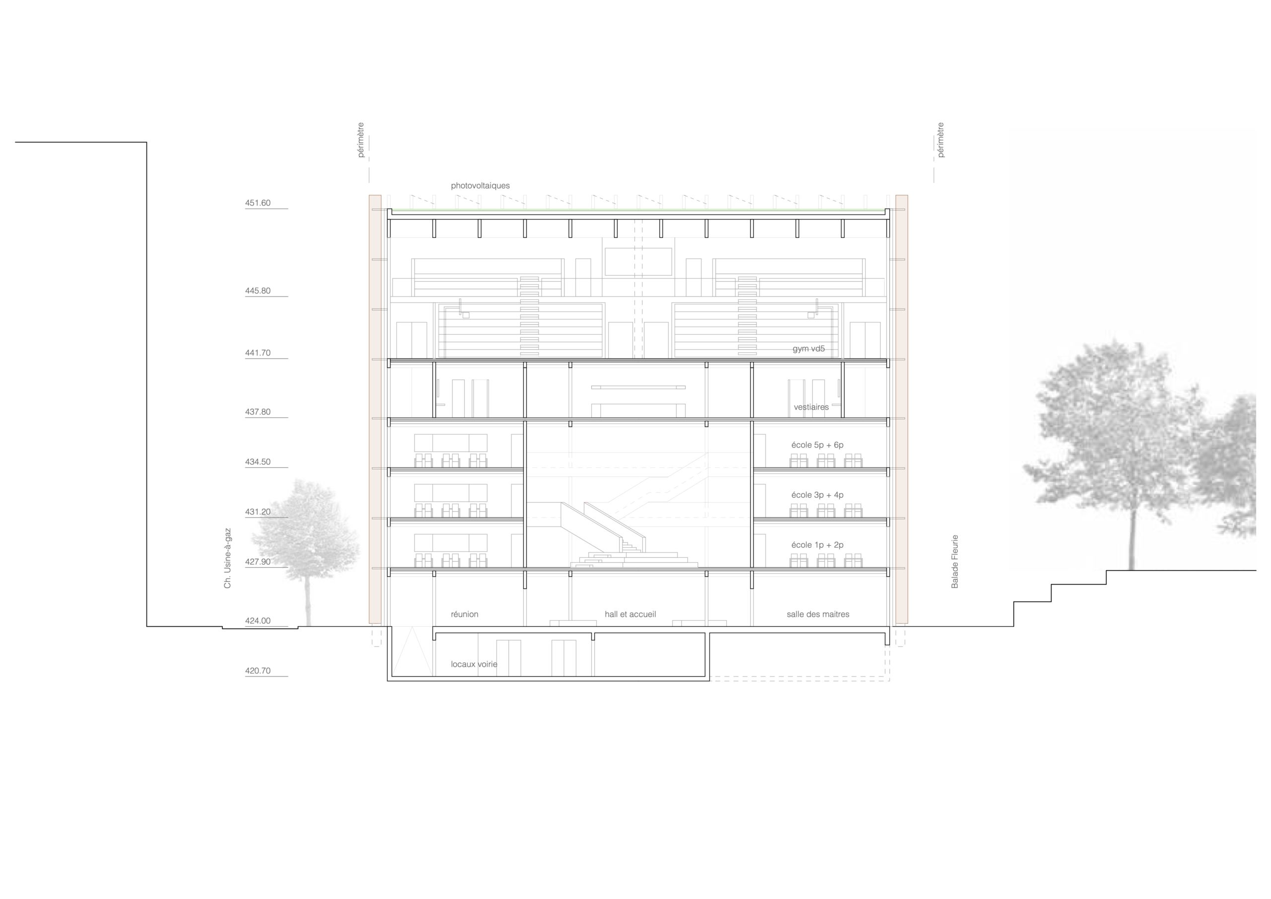
Afin d’optimiser l’utilisation du périmètre de construction, le programme s’organise verticalement sur 6 niveaux à partir du rez-de-chaussée. L’école prend place sur les 3 premiers niveaux et le complexe sportif sur les 3 derniers. L’école est découpée par étage selon les exigences du programme, soit 6 classes et par classe d’âge, avec les tous petits au premier étage. Le volume intérieur, reliant les 3 niveaux scolaires, permet les communications internes et s’ouvre à l’Ouest sur le préau, le Parc et la forêt.

Le hall d’entrée est généreux afin d’accueillir les élèves des 18 classes primaires (env. 400 élèves), ainsi que le public du centre sportif (env. 300 personnes). La salle de gym, en quasi lévitation, est placée volontairement au dernier niveau afin de créer un signe fort en relation avec le Parc, une sorte de « Phare » orienté à l’Ouest de ce grand espace public destiné à devenir le coeur du quartier de Malley Centre. Le complexe sportif est accessible par une colonne de circulations verticales et 2 grands ascenseurs avec une capacité de 52 personnes afin d’amener les 300 personnes au niveau des gradins en moins de 5 min. Le foyer, et sa terrasse avec vue sur le Parc, se trouve au niveau des vestiaires qui sont prévus a l’abri du public avec des accès indépendants pour chaque salle de gym.

Contact

Résumé de la politique de confidentialité

Ce site utilise des cookies afin que nous puissions vous fournir la meilleure expérience utilisateur possible. Les informations sur les cookies sont stockées dans votre navigateur et remplissent des fonctions telles que vous reconnaître lorsque vous revenez sur notre site Web et aider notre équipe à comprendre les sections du site que vous trouvez les plus intéressantes et utiles.